
Terug naar Huurwoningen
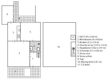
Markeweg
| Huurprijs: | per maand € 380,84 |
|---|---|
| Adres: | Markeweg |
De huurprijs van een woning aan de Markeweg bedraagt per 1 juli 2025
De huurprijs is samengesteld uit de Basishuur € 375,84 en Servicekosten € 5,-











